Opole, Czarnowąsy

Działka na sprzedaż

Opis nieruchomości

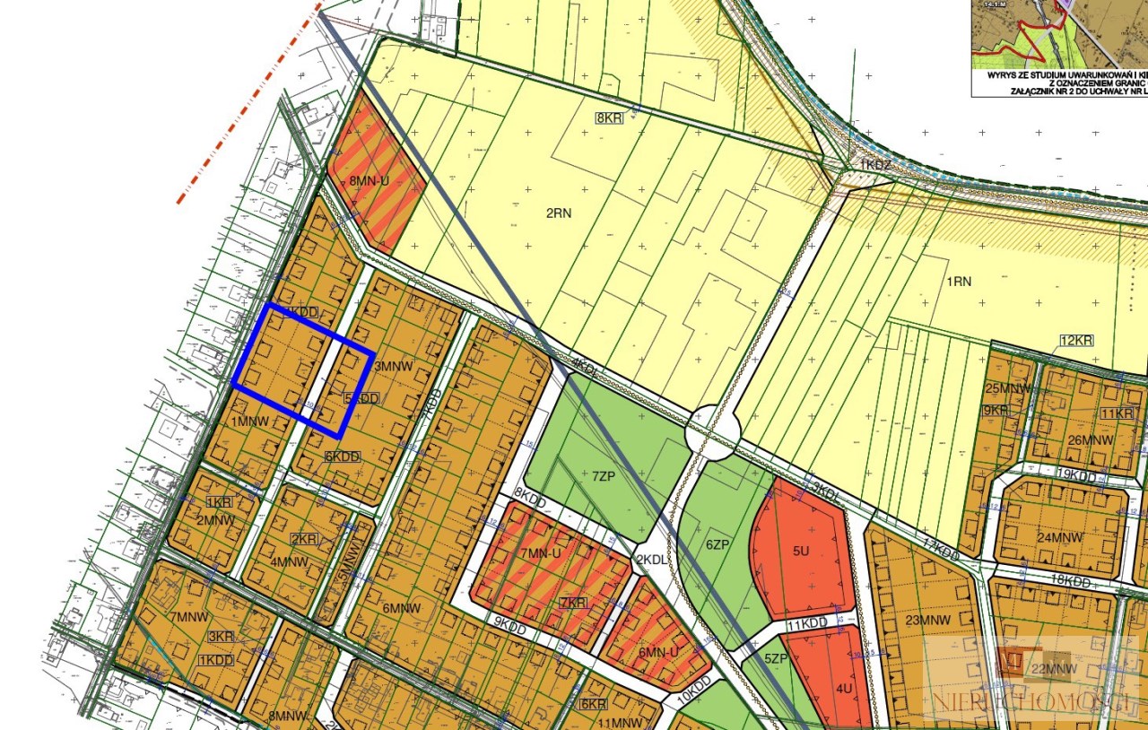
Prawie hektarowa działka z projektem podziału, zlokalizowana w Opolu-Czarnowąsach, w spokojnej części tej dzielnicy (ul. Podleśna), w której powstaje nowa zabudowa wolnostojących budynków mieszkalnych.

Projekt podziału przewiduje powstanie 9 działek o  kształcie regularnych prostokątów i powierzchniach od 770 do 877m2 oraz działki stanowiącej drogę dojazdową.

Dostępne media to: prąd, woda i kanalizacja.

Dla przedmiotowego terenu został już przedstawiony projekt Miejscowego Planu Zagospodarowania Przestrzennego (rozpatrzono już wniesione uwagi), w którym określono m.in.: 


przeznaczenie terenu: teren zabudowy mieszkaniowej jednorodzinnej wolnostojącej


wskaźniki wykorzystania terenu:

- nadziemna intensywność zabudowy od 0,2 do 0,4
- maksymalna intensywność zabudowy 0,5
- maksymalny udział powierzchni zabudowy 25
- minimalny udział powierzchni biologicznie czynnej 40% (do bilansowania dopuszcza się 10% udziału powierzchni biologicznie czynnej położonej na tarasach, dachach, stropodachach)

parametry zabudowy:
- maksymalna wysokość budynków z dachem stromym do 10m
- maksymalna wysokość budynków z dachem płaskim do 5
- liczba kondygnacji nadziemnych budynków do 2


dachy:
- strome dwuspadowe i wielospadowe o jednakowym kącie nachylenia połaci w przedziale 30º-45º
- dopuszcza się dachy jednospadowe  lub płaskie na części budynku, jednakże nie mogą one przekraczać 50% powierzchni zabudowy
- pokrycie dachów stromych w odcieniach kolorów czerwonego, brązowego lub grafitowego


W 2020 roku wydane zostały warunki zabudowy dla inwestycji: budowa zespołu budynków mieszkalnych jednorodzinnych, budowa drogi wewnętrznej, budowa odcinków sieci kanalizacji sanitarnej, wodociągowej i elektroenergetycznej.

 

Nota prawna

Opis oferty zawarty na stronie internetowej sporządzany jest na podstawie oględzin nieruchomości oraz informacji uzyskanych od właściciela, może podlegać aktualizacji i nie stanowi oferty określonej w art. 66 i następnych K.C.

Szczegóły oferty

Symbol oferty CMW-GS-392
Powierzchnia 8 317,00 m²

Kalkulator kredytowy

PLN
%
Wysokość raty

Kalkulator kosztów

PLN
PLN
PLN
PLN
PLN
PLN
%
PLN
Podatek od czynności cywilno-prawnych
Taksa notarialna (opłata notarialna)
VAT od taksy notarialnej (opłaty notarialnej)
Wniosek do WKW
VAT od wniosku do WKW
Prowizja agencji nieruchomości
VAT od prowizji agencji nieruchomości
Wypisy aktu notarialnego - około
RAZEM (cena + opłaty)

Podobne oferty

działka na sprzedaż - Opole

działka na sprzedaż

Opole
  11 769,00 m2 127,45 zł/m2
działka na sprzedaż - Opole, Winów

działka na sprzedaż

Opole, Winów
  9 534,00 m2 141,60 zł/m2
działka na sprzedaż - Opole, Malina

działka na sprzedaż

Opole, Malina
  12 697,00 m2 93,72 zł/m2
działka na sprzedaż - Opole, Gosławice

działka na sprzedaż

Opole, Gosławice
  2 452,00 m2 435,97 zł/m2

Napisz do nas

Proszę wypełnić to pole
Proszę wypełnić to pole
Proszę wypełnić to pole
Proszę wypełnić to pole
Trwa wysyłanie...

Ta strona wykorzystuje pliki cookies w celach statystycznych oraz w celu dostosowania naszych serwisów do indywidualnych potrzeb klientów. Zmiany ustawień dotyczących plików cookie można dokonać w dowolnej chwili modyfikując ustawienia przeglądarki. Korzystanie z tej strony bez zmian ustawień dotyczących cookies oznacza, że będą one zapisane w pamięci urządzenia.

rozumiem